Chefmax Works with Thai Client on Hotel Kitchen Solution
On May 26th, during a trip to Thailand, Chefmax visited a client and toured Mercure, a large hotel under renovation belonging to him. the purpose of the visit was to talk to the client about the progress of the renovation of the one-stop kitchen and the problems encountered.

During the initial conversation, the client described to Chefmax the challenges he faced: building the hotel and the supporting kitchen from scratch was a challenge, so he needed to find an experienced commercial kitchen equipment supplier and wanted them to contract the construction of the entire kitchen.
As a company with extensive experience in the field of one-stop kitchens, Chefmax entered into an amicable partnership with the client. First of all We worked with the client to select the complete set of equipment and determine the equipment specifications based on the number of diners.
The kitchen equipment required by the hotel was of a higher standard and more comprehensive than in other types of restaurants, and Chefmax met these needs perfectly.
We have a full range of equipment, from machinery such as cooking equipment, refrigeration equipment and food preparation equipment to stainless steel worktops, fume hoods and small appliances of all kinds. We also provided a range of equipment for the water bar outside the kitchen, including wine display cabinets, ice machines and ice storage tubs.
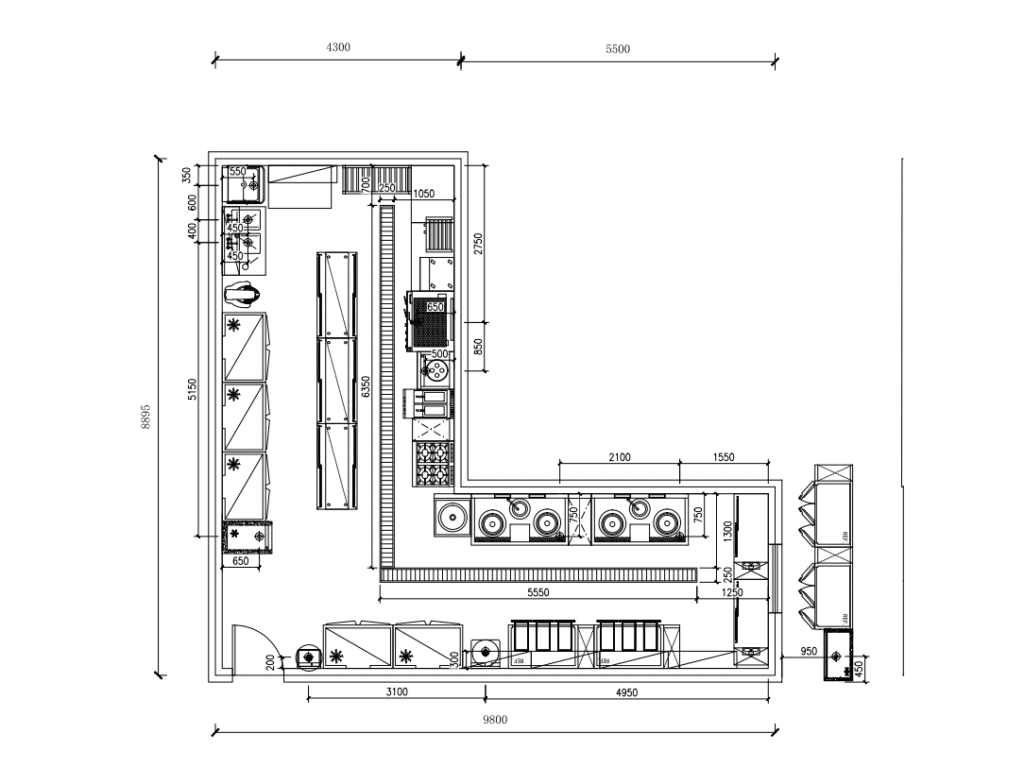
Soon after this, we carried out a one-stop drawing based on equipment size and kitchen area. The storage area, preparation area, cooking area, cleaning area and serving area were clearly delineated. In accordance with the guidelines for commercial kitchens, the adjacent areas are efficiently connected and do not interfere with each other to avoid “collisions” in use.



In the design, we provide on-site measurement service to get more accurate data. Professional engineers plan the location of the water and electrical circuits in the hotel in detail. They consider how the equipment will be used to ensure that the water and electrical circuits are arranged in a reasonable and convenient way to improve the efficiency of the hotel’s kitchen operations.
We also perform 3D modeling of the one-stop kitchen drawings, providing the hotel with accurate layout drawings and visualizations. This allows the hotel management team to better understand the layout and equipment configuration of the entire kitchen, and also to make changes whenever needed.
In our communication with the client, we learned that both the front lobby and the kitchen of the hotel are not yet finished, but everything is going smoothly. In the spacious dining room, workers are laying water and electrical circuits according to the drawings. All kinds of equipment will also be transported quickly and safely to the hotel entrance.


Chefmax is proud to have provided the commercial kitchen equipment and design drawings for this hotel’s kitchen. During the subsequent construction process, we were also available for video calls to answer any questions and guide the installation of the equipment, and provided a warranty on the equipment parts for over one year.
Chefmax’s expertise and experience provided the hotel with helpful advice and solutions to ensure its kitchen renovations met the highest standards and best practices.
With extensive experience in design, installation and after-sales service, we are committed to providing our customers worldwide with the highest quality commercial kitchen equipment and services, as well as high quality one-stop kitchen solutions, including design drawings, custom equipment, fast shipping, guided installation and perfect after-sales service.